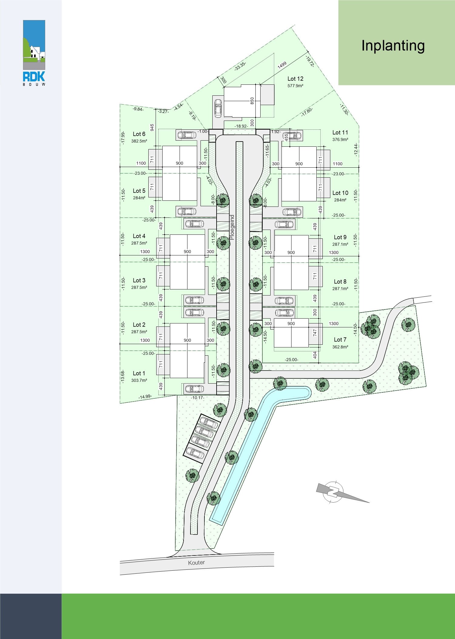
Kouter: start verkoop

Poederlee

2026/03/26

Met het nieuwbouwproject Kouter realiseert RDK twaalf stijlvolle woningen aan de Kouter te Poederlee. Deze woningen zijn vanaf nu in verkoop!

Wilt u meer weten over dit project? Aarzel dan niet en contacteer ons snel voor meer info of breng een vrijblijvend bezoekje aan een OPEN HUIS !

contacteer ons

Bij vragen mag u ons altijd bellen. U kunt deze ook stellen via het formulier. Bij vragen over een specifiek project verwijzen we u naar het formulier voor onze nieuwbouwprojecten.

RDK NV

Merksplassesteenweg 18
2310 Rijkevorsel
België

BE.0422.033.439

Contact info